Plan Chad Gradowski August 12, 2024
Coastal Living's Cottage of the Year, SL-593, is a warm, inviting year-round retreat where can relax enjoy each other's company. by Eric
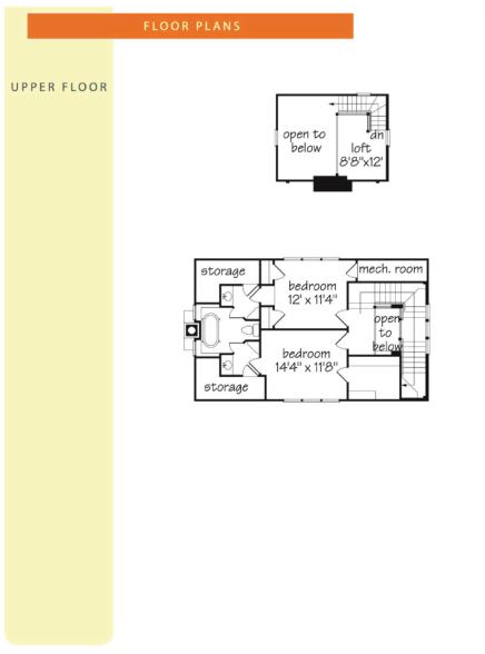
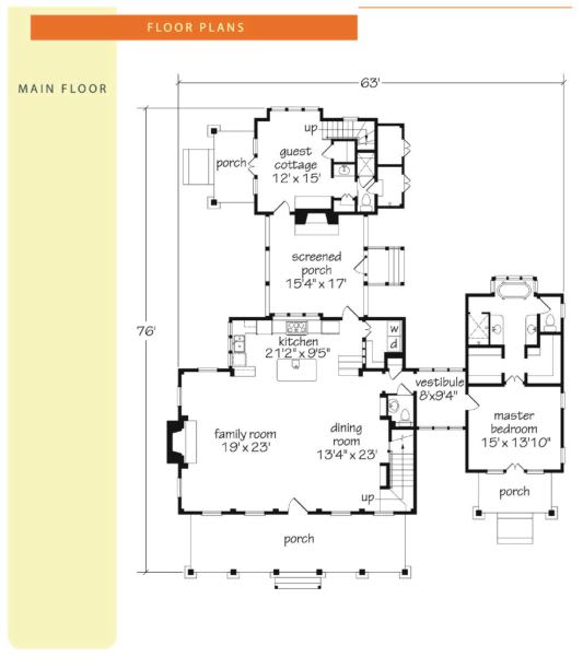
of Moser Design Group in Beaufort, South Carolina, the cottage features 2,612 square feet, 4 bedrooms and 3 baths.
The first floor of the main cottage encompasses three distinct living spaces: dining, sitting and cooking areas. Inside the front door, a dining area replaces a traditional foyer. There's plenty of space for a long rectangular table to be extended during the holidays. After breaking bread, guests can chat next to the large hearth in the adjacent family room. The hardworking kitchen is equipped for a large family or lots of guests, and the home's open floor plan allows the hosts to participate in the party. Just off the kitchen, a screened porch with a fireplace links the main house to the guest cottage, complete with porch and a loft. The house brims with built-in character, like shelves that flank the stair landing. Upstairs, two bedrooms share a Jack-and-Jill bath. For privacy, a vestibule separates the master quarters from the main house. Exposed beams add architectural interest to the master bedroom, which has its own sitting porch.
Choose Chad Team, led by Chad Gradowski, is comprised of top-producing New Buffalo, MI real estate agents for Coldwell Banker. The team serves the real estate needs of Grand Beach, Union Pier, Lakeside, Harbert, Sawyer, Stevensville, and its surrounding areas. Don't miss out on the unparalleled expertise and personalized service offered by the Choose Chad Team. Whether you're buying or selling a home, trust them to guide you toward success. Contact Choose Chad Team today to make your real estate goals a reality!
Stay up to date on the latest real estate trends.
blog
Discover the Best Places to Invest in Michigan and Indiana's Lakeside Retreat.
blog
Essential Foundation Care Tips for New Buffalo Homeowners Seeking Long-Term Stability.
blog
Discover the Top Spots Where You and Your Furry Friend Can Enjoy a Meal in Southwest Michigan.
blog
How to Maximize Value and Navigate the Selling Process with Ease.
blog
Experience Luxury Living Along One of the Midwest’s Most Sought-After Shorelines.
Plan
Plan
blog
Creating a Functional and Stylish Workspace in Your New Buffalo Home.
blog
Elevating New Buffalo Homes With Next-Level Style and Functionality.
Don't miss out on the unparalleled expertise and personalized service offered by Chad Gradowski and the ChooseChad Team. Whether you're buying or selling a home, trust the #1 Real Estate Agent in Southwest Michigan to guide you towards success. Contact Chad today to make your real estate goals a reality.