Plan Chad Gradowski August 12, 2024
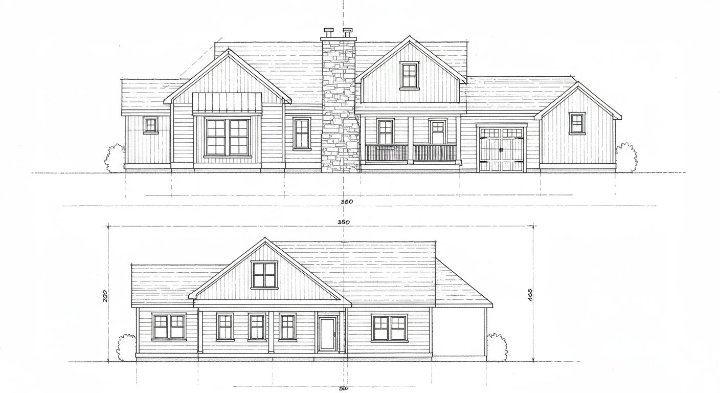
Adaptive Cottage was recently constructed in Habersham, South Carolina, and is a home specifically designed to accommodate those who have mobility issues or wish to age in place.
This single-story home has all the amenities you would want in a coastal cottage -including ample porch space-but it's built with practicality in mind. The design includes the option to add a ramp from the garage area to the rear door, as well as baths that feature zero-entry showers and slip-resistant flooring in all wet zones. The overall depth including the breezeway and garage is 106'-8"
Choose Chad Team, led by Chad Gradowski, is comprised of top-producing New Buffalo, MI real estate agents for Coldwell Banker. The team serves the real estate needs of Grand Beach, Union Pier, Lakeside, Harbert, Sawyer, Stevensville, and its surrounding areas. Don't miss out on the unparalleled expertise and personalized service offered by the Choose Chad Team. Whether you're buying or selling a home, trust them to guide you toward success. Contact Choose Chad Team today to make your real estate goals a reality!
Stay up to date on the latest real estate trends.
blog
Discover the Best Places to Invest in Michigan and Indiana's Lakeside Retreat.
blog
Essential Foundation Care Tips for New Buffalo Homeowners Seeking Long-Term Stability.
blog
Discover the Top Spots Where You and Your Furry Friend Can Enjoy a Meal in Southwest Michigan.
blog
How to Maximize Value and Navigate the Selling Process with Ease.
blog
Experience Luxury Living Along One of the Midwest’s Most Sought-After Shorelines.
Plan
Plan
blog
Creating a Functional and Stylish Workspace in Your New Buffalo Home.
blog
Elevating New Buffalo Homes With Next-Level Style and Functionality.
Don't miss out on the unparalleled expertise and personalized service offered by Chad Gradowski and the ChooseChad Team. Whether you're buying or selling a home, trust the #1 Real Estate Agent in Southwest Michigan to guide you towards success. Contact Chad today to make your real estate goals a reality.